Санкт-Петербурге
Санкт-Петербург
Главная » Реализованные проекты » ЗАО «Краски Балтики»

г. Партизанск, Приморский край - ЗАО «Краски Балтики»

Описание проекта
Последние реализованные проекты

г. Шадринск, Курганская обл.

Окрасочно-сушильная камера 22000х5550х5900. Назначение: Окраска и сушка тепловозов.

г. Великий Новгород

Окрасочно-сушильная камера 9000х4000х3000. Окраска и сушка трубопроводной арматуры.

г. Пермь

Сушильная печь 1500х800х1500. Сушка агрегатов.

г. Сафоново, Смоленская обл.

Окрасочно-сушильная камера 9000х4000х3000. Сушильная камера 9000х2500х3000. Окраска и сушка изделий из пластика.

г. Санкт-Петербург

Окрасочно-сушильная камера 9200x4500x3900, Пост подготовки. Окраска и сушка коммерческого автотранспорта

г. Хвалынск, Саратовская обл.

Окрасочная камера 7000x4500x3500. Окраска металлоконструкций.

г. Ставрополь

Окрасочно-сушильная камера 12000х6000х6000. Окраска и сушка грузовой техники.

г. Березники, Пермский край

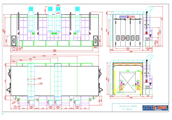
Окрасочная камера 18000х6000х6000. Назначение: Окраска вагонов.

Все проекты

Смотреть все реализованные проекты
Наши клиенты
РЖД
Роскосомос
CATERPILLAR
Man
Метрополитен СПБ