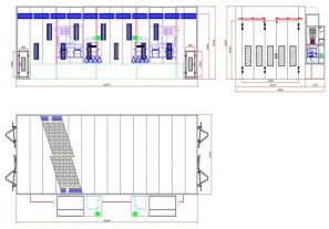
- Тип кабины: проходная
- Размеры (мм): 16000х6000х5000
- Ворота: 5 створок
- Освещение: люминесцентное
- Общая производительность ПВУ(м3/ч): 80 000
- Расположение ПВУ: справа
- Источник нагрева: газ
- Воздуховоды вытяжки: в правой стене
-
Опции:
- • Система автоматического пожаротушения и сигнализации
- • Передаточная тележка




























